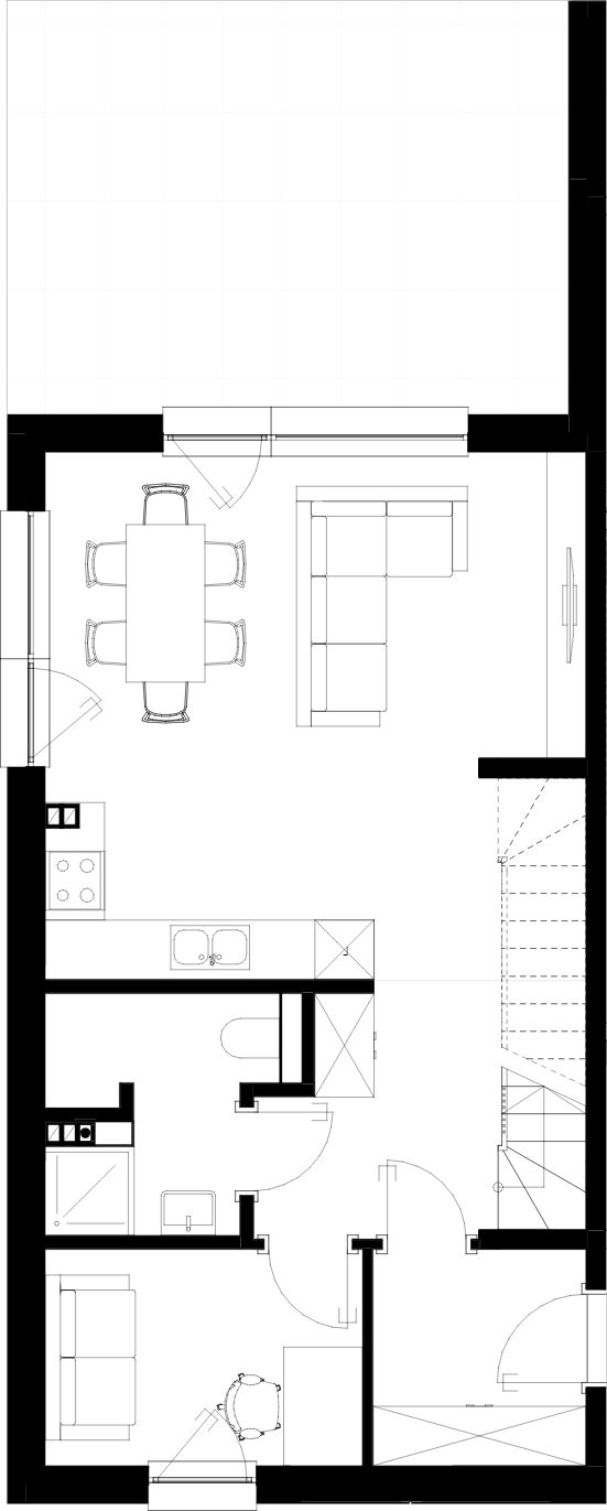
3A
nr domu
Status
Rezerwacja
pow. domu
94,78 m2
pow. działki
434,00 m2
ilość pokoi
4
cena brutto
W cenie uwzględniono udział w drodze wewnętrznej
9 485 zł / m2