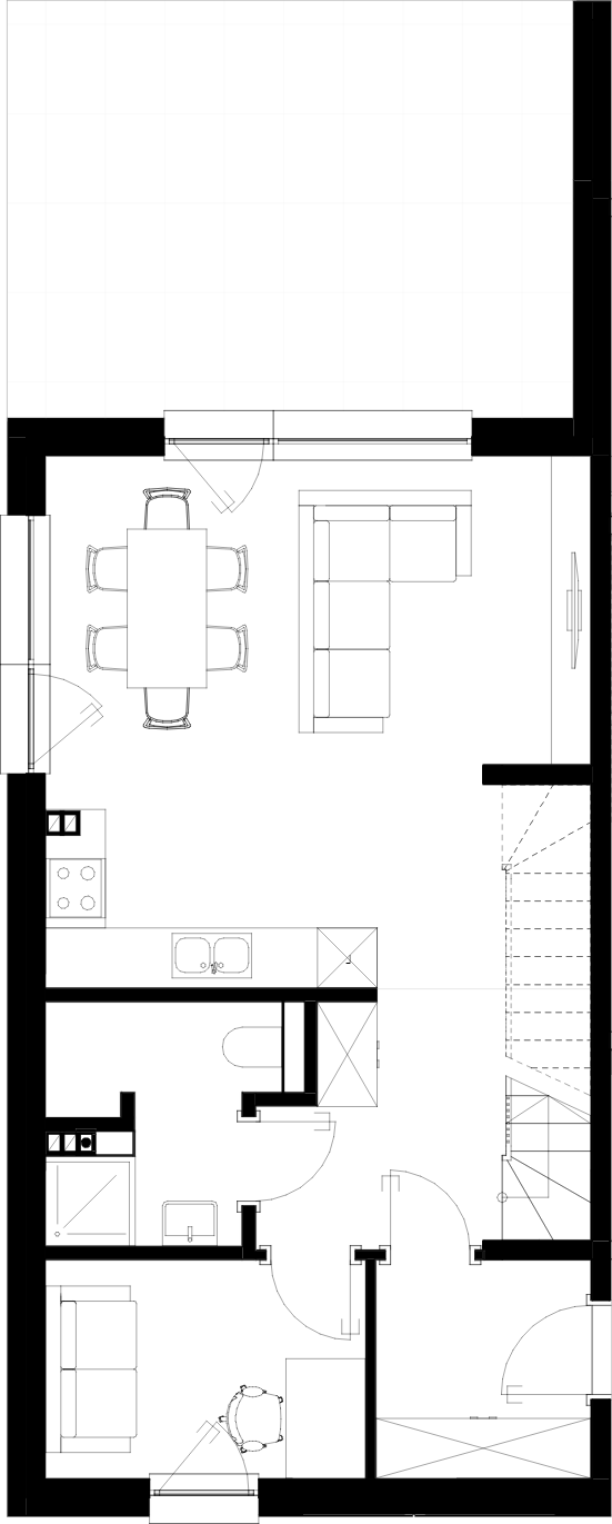
4A
nr domu
Status
Wolny
pow. domu
94,78 m2
pow. działki
469,00 m2
ilość pokoi
4
cena brutto
W cenie uwzględniono udział w drodze wewnętrznej
9 485 zł / m2