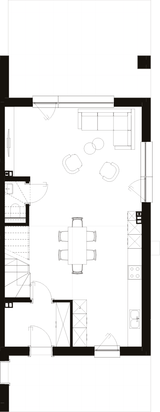
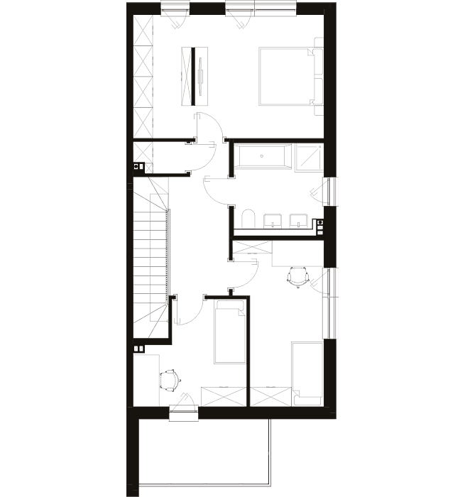
5B
nr domu
Status
Wolny
pow. domu
118,06 m2
pow. działki
409,00 m2
ilość pokoi
4
cena brutto
W cenie uwzględniono udział w drodze wewnętrznej
8 970 zł / m2