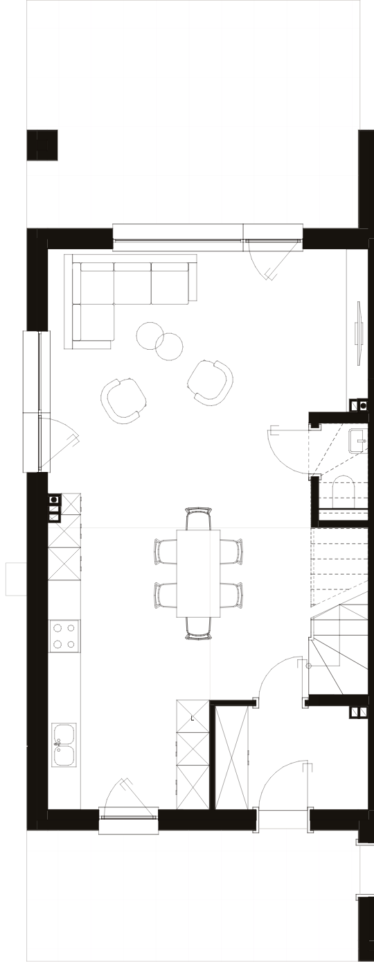
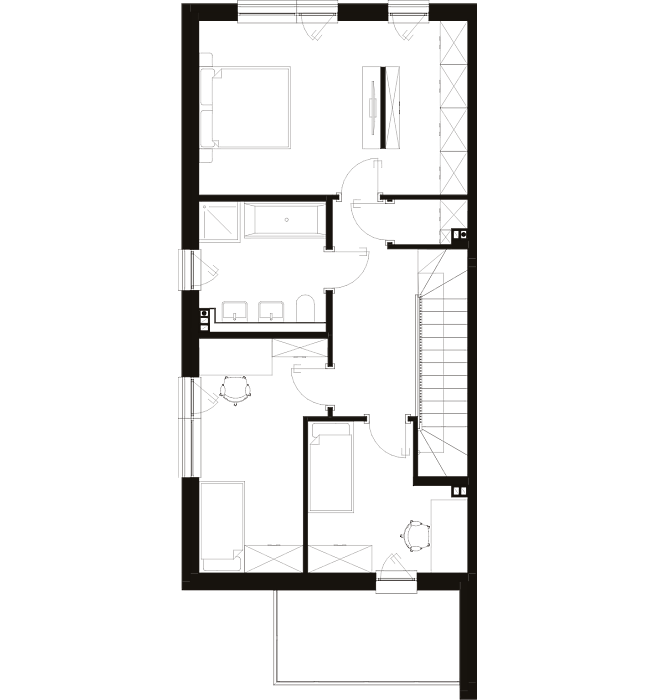
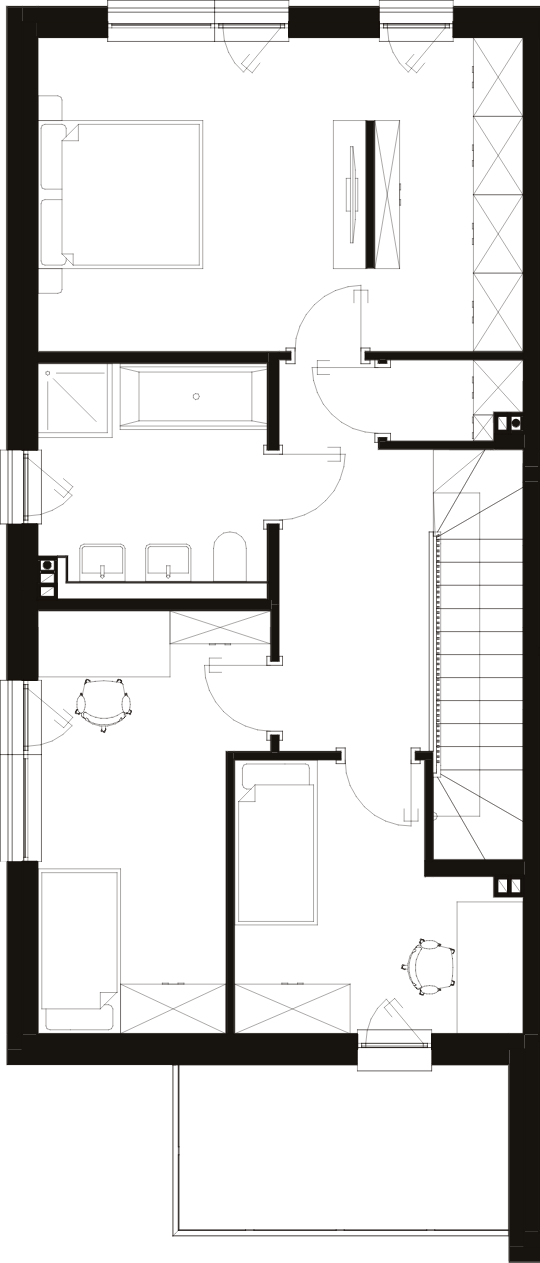
6B
nr domu
Status
Zablokowane
pow. domu
118,06 m2
pow. działki
345,00 m2
ilość pokoi
4
cena brutto
W cenie uwzględniono udział w drodze wewnętrznej
9 485 zł / m2