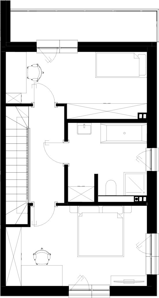
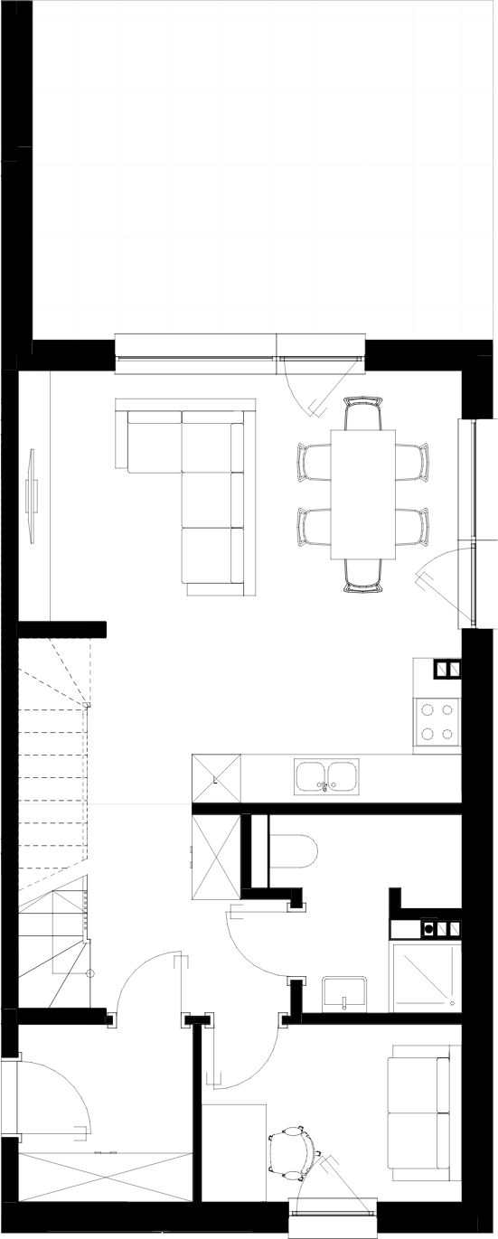
7A
nr domu
Status
Zablokowane
pow. domu
94,78 m2
pow. działki
548,00 m2
ilość pokoi
4
cena brutto
W cenie uwzględniono udział w drodze wewnętrznej
8 970 zł / m2